Close to Town & Private - Don't miss this one!

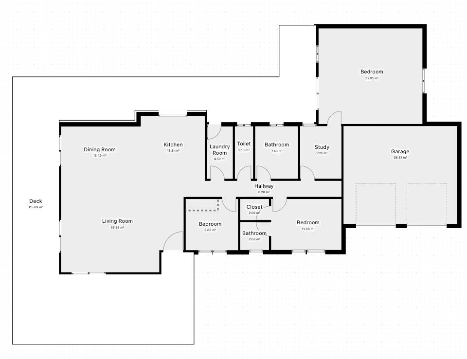
Tucked away from the road frontage, this three-bedroom, two-bathroom Lockwood home is everything you're looking for if you are after a neat downsizer, a low maintenance home and grounds, or something conveniently close to town. With a two-bay roller door garage enjoying direct access to the home, plus an additional one bay garage/workshop, there are great storage options and plenty of convenience! Wide verandas surround the living, kitchen and dining areas facing north for a beautiful aspect.

As you enter the property, the concrete driveway leads you directly to the double garage and the front door access via the veranda. Opening the front door of this Lockwood house, you enter an open plan living, kitchen and dining area. The solidly built home offers privacy and serenity with direct access from the lounge/dining to the north facing deck, overlooking fully established gardens. 

The large master bedroom includes a walk-in wardrobe and ensuite bathroom with shower. The second bedroom has built-in wardrobes. The third bedroom is massive in size, has direct access to the deck, and could be used as the master bedroom, a rumpus room, home theatre, or potentially converted to two smaller rooms.

The home's floorplan is very practical, with living, dining and kitchen all taking advantage of the surrounding deck. The bedrooms and bathrooms are at the other end of the house.

~ 3 bedrooms and 2 bathrooms

~ Main bathroom with shower/bath and separate toilet, ensuite with shower

~ Open plan living, dining and kitchen

~ Wide north facing covered deck wrapping around three sides of the house

~ Established, low maintenance gardens

~ Easy road frontage and central to town

~ Direct access from the house to 2 car garage

~ Additional 1 car garage (shed/workshop)

This centrally located property is walking distance to town and offers private and peaceful living on a large half-acre block. The serene garden surrounding the house provide lovely screening from the road and surrounding properties.

3 2 3 2,829 m2
Address 71 New Cascade Rd, Norfolk Island
Price SOLD for $680,000
Property Type Residential
Property ID 633
Category House
Land Area 2,829 m2

Agent Details

Rose Evans photo

Rose Evans

0011 6723 22429
View Profile