Under Contract

Glencar Luxury Villas – Unmatched Living on Norfolk Island

Discover a remarkable opportunity to own an elegant dual-villa residence set across 5.5 acres of scenic Norfolk Island landscapes, with panoramic views stretching toward the Pacific Ocean and surrounding valleys. Glencar Luxury Villas, built to the highest standards, offer a rare blend of luxurious living with the flexibility to either occupy both villas, or reside in one while potentially leasing the other as a 5-star holiday rental.

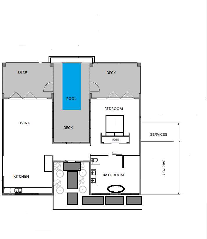
Since construction in 2023, this property has become a benchmark for quality and design, incorporating refined modern aesthetics with timeless charm. Perfect for a family estate or as a private retreat, each villa offers more than 100 sqm of beautifully appointed internal living space and 40 sqm of outdoor decking across three zones, seamlessly flowing to private magnesium pools.

Each villa is crafted for exceptional comfort with premium Coco Republic furnishings, bespoke kitchens, and expansive bathrooms complete with oversized stone bathtubs and generous walk-in showers. Raked ceilings with Velux skylights in kitchens and bathrooms bring in ample natural light, enhancing the villas' warm, open feel. High-quality 21mm oak herringbone flooring and state-of-the-art fireplaces add to the sophisticated ambiance.

This exceptional property offers a suite of high-value inclusions, providing convenience and sustainability for your lifestyle:

  • 2 x 2020 Volkswagen Tiguans: Reliable, versatile, and perfect for exploring the island in style and comfort.
  • 1 x 2020 Mercedes Valente: A spacious, 8-seater luxury vehicle ideal for family outings or group adventures.
  • 1 x 2024 Club Car Tempo Golf Cart: Perfect for luxurious transportation around the Norfolk Island golf course.

Additionally, this property is equipped with a state-of-the-art Sungrow Solar Battery System, featuring a 6.9KW solar panels, 10KW Three-Phase Hybrid Inverter with a 12.8KW high-voltage battery and a Three-Phase Smart Energy Meter. This system provides efficient, renewable power, significantly reducing energy costs and ensuring eco-friendly, sustainable living.

Key property features include:

  • Ocean and valley views
  • Private heated magnesium pools
  • Custom-crafted kitchens and premium fixtures throughout
  • Spacious decks for seamless indoor-outdoor living
  • 20,000-gallon water tank, ensuring plentiful water supply
  • Ceiling fans in living areas and bedrooms
  • Established landscaped grounds and breathtaking views
  • Fully furnished with Coco Republic furnishings
  • Three vehicles and a golf cart included with the property
  • Established fruit trees around the property

With its flawless design, impeccable attention to detail, and versatile living options, Glencar Luxury Villas is a property like no other on Norfolk Island, offering an extraordinary standard of living in one of the island’s most desirable locations. Whether you envision it as a family compound, dual-residence, luxurious single-family home, or tourist accommodation for maximum return on investment, Glencar Luxury Villas are a South Pacific gem just waiting to be discovered.

2 2 2 2.23ha
Address 157 Stockyard Rd, Norfolk Island
Price $2,250,000
Property Type Residential
Property ID 811
Category Villa
Land Area 2.23 ha
Floor Area 280m2

Agent Details

Rose Evans photo

Rose Evans

0011 6723 22429
View Profile