Under Contract

Versatile Family Living on Generous Flat Land

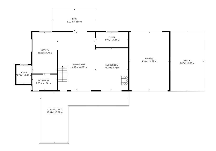
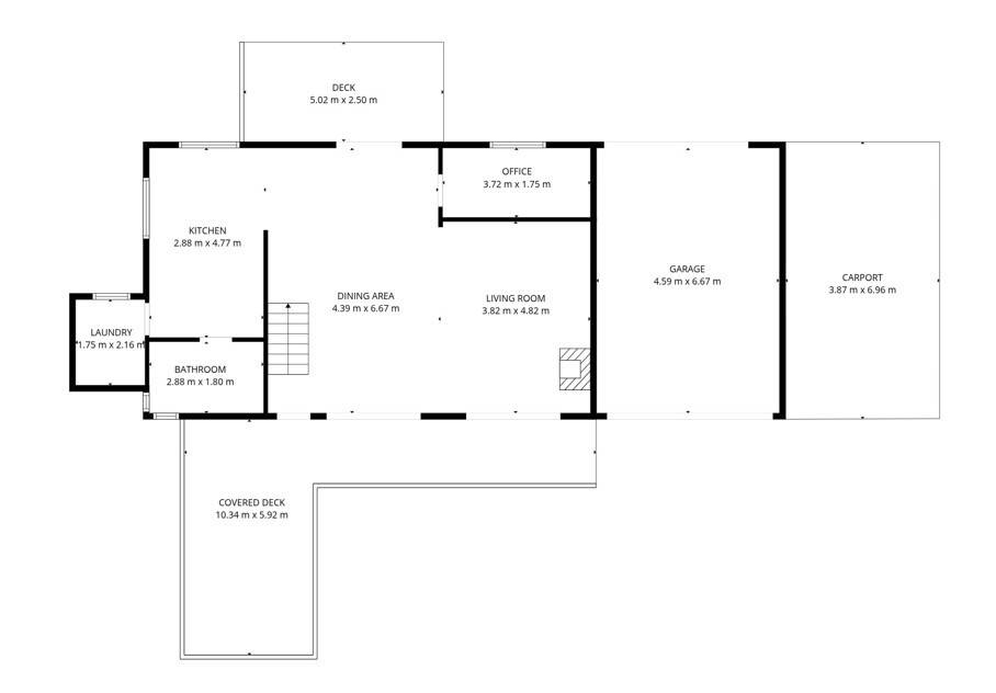
Set on a generous 3,758m² rural parcel, this well-established property offers an appealing combination of space, versatility and family-friendly living. Featuring a spacious main residence, a separate self-contained flat, and beautifully landscaped grounds, this is a property with broad appeal for families, extended households or buyers seeking flexible accommodation options.

The main dwelling is a distinctive two-level A-frame home designed for comfortable everyday living. The ground floor opens into a large open-plan living, dining and kitchen area, creating a welcoming central hub for family life. A slow-combustion fireplace adds warmth and character to the lounge, while the modern kitchen is well equipped with relatively new whitegoods and practical workspaces. Also on this level are a study, laundry and bathroom, providing excellent functionality.

Upstairs, the home offers three well-proportioned bedrooms, a central bathroom and a separate toilet. New floorboards enhance the upstairs and stairwell, and all rooms throughout the home have been freshly painted. The exterior of the house has also been recently repainted, presenting a refreshed and well-maintained appearance.

Outdoor living is a standout feature. The expansive front deck is fully covered and outdoor furniture, creating a fabulous all-weather entertaining space. A smaller rear deck leads to a private courtyard with a firepit - ideal for relaxed evenings and year-round enjoyment, plus the perfect fenced space for pets. The property enjoys a pleasant outlook and privacy, surrounded by Norfolk pine trees and other established vegetation.

Adding significant versatility is a compact, self-contained flat with its own living amenities, separate utilities (gas, electricity, water and NBN), a small storage shed and a private rear deck overlooking the backyard. This space is ideal for guests, extended family, teenagers or additional accommodation flexibility.

Additional Features Include:

  • Enclosed double carport currently used as a workshop

  • Separate single carport

  • Small storage shed

  • Gas hot water

  • Approx. 10,000 gallons of underground water storage (two tanks)

  • Fully fenced yard with freshly painted front fence

  • Established trees and landscaped gardens

  • Gravel driveway with easy access

  • Family-friendly features including swings and cubby houses at both the front and rear of the property

Offering space, privacy and multiple living options on a substantial allotment, 37 Rooty Hill Road presents an excellent opportunity to secure a versatile home in a convenient Norfolk Island location.

4 3 3 3,758 m2
Address 37 Rooty Hill Road, Norfolk Island
Price $820,000
Property Type Residential
Property ID 901
Category House
Land Area 3,758 m2

Agent Details

Rose Evans photo

Rose Evans

0011 6723 22429
View Profile